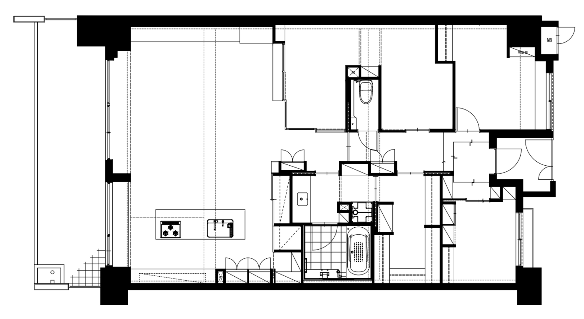
改修後平面図
リビングダイニング
キッチン
ROOM3・4
トイレ
洗面室
FCL
ROOM2
ROOM1
玄関
1/9
リビングダイニング
リビングダイニング
キッチン
ROOM3・4
トイレ
洗面室
FCL
ROOM2
ROOM1
玄関
Powered by
RICOH360 Tours